Current & Recent Projects


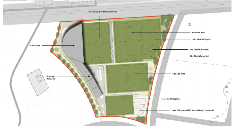
StadiArena & Academy, Southern Europe
The HAMA venue will feature a world leading football academy and a separate esports academy, both linked to a modular stadium and innovative, flexible, multi-purpose arena (StadiArena), meaning that the complex is a single site venue for youth development, leisure, entertainment, sports tourism and community outreach initiatives.
The HAMA business model is based on multi-event, multi-use and multi-revenue streams, with the heart of the project focusing on connecting people and letting them play, work and grow together.

StadiArena & Sports City, India
This project’s primary objective is to establish the Sports City as an international standard complex whilst creating modern self-sustainable sports infrastructure with world-class facilities that support talented athletes. The venue is to provide a fitness friendly, health-oriented lifestyle for residents of the Sports City, attracting footfall from across India as well as becoming the home base of all state Sports Federations.
The stadium with a 5,000 capacity StadiArena will be at the very heart of the complex.

StadiArena, Gujarat, India
In January 2009 Narendra Modi (then Gujarat’s Chief Minister), announced that he was to champion an innovative development, creating India’s first truly world class multi-purpose 22,000 capacity stadium, to be built in Ahmedabad, Gujarat. The £60 million stadium was built under a public private partnership (PPP) model and StadiArena’s unique technology allows one stand to be converted into a 47,000sq ft, 4,000 capacity, pillar-less, multi-purpose indoor arena that can host sports, concerts, exhibitions, conferences, trade shows and other events.
In October 2016 the World’s first StadiArena was opened and hosted the Kabaddi World Cup which was broadcast to an audience of over 300m viewers in 125 countries.




The Ricoh Arena, Coventry, UK
The Miller Partnership were architects for The Ricoh Arena at Coventry which was completed in 2005 and is now the home of Wasps RFC & Coventry City Football Club. The complex comprises a £56M multi-purpose Sports Arena which includes a 32,000 seat stadium capable of hosting football, rugby and concerts, a 70 bedroom hotel, a 6000m² concert/sports Arena and a 10,000m² Isle of Capri Casino. The stadium complex was designed as part of a full scale redevelopment of a brown field site. The development on the site of a former gas works, on the outskirts of Coventry, also features the retail development Arena Park. The retail development includes a 140,000sq.ft Tesco flagship store, 15 shop units, 5 retail units including Next, Boots, Borders, Sports World and a Pizza Hut restaurant.
Contact us to find out more...